唐津市鏡虹町 新築戸建(売買 新築一戸建て) | 唐津市鏡 | 福岡市周辺の不動産・賃貸・売買は ヤマダ不動産 福岡西店 リフォーム・新築相談・老人ホーム紹介

唐津市鏡虹町 新築戸建 | 唐津市鏡の不動産物件

9万円分の「全国のヤマダデンキで使えるポイント」or「JCBギフトカード」or「65インチTV」or「空気清浄機・ダイソンドライヤー等の家電」or「6畳用エアコン」or「ヤマダデンキ特別優待割引券」≪限定1品≫プレゼント☆
さらに、ご購入相談で来店後、Google口コミ投稿で2000円分のQUOカードプレゼント!※一世帯2回まで
土日祝日もご案内可能です^^
是非一度「ヤマダ不動産」へご相談ください!あらゆる不安や疑問に誠心誠意お応えします^^
【新築一戸建て】 新築 駐車場あり
価格 3,460万円 (税込)
筑肥線 虹ノ松原駅 徒歩5分
スマホ表示
物件コード:121443
所在地 建物面積
土地面積
間取り 築年月
佐賀県唐津市鏡虹町 95.02m2
192.38m2
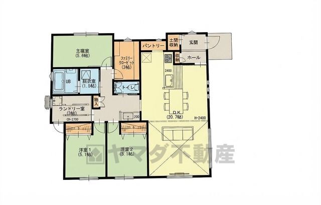
3LDK 2025/06

物件基本情報

▲オール電化など設備も充実 完成しました^^内覧受付中です。お気軽にお問い合わせください^^
▲家事動線に配慮した、20.7帖LDKのゆとりの3LDK平屋プラン 落ち着いた住宅地内で快適な生活を実現してみませんか^^
物件種目 新築一戸建て
物件名称 唐津市鏡虹町 新築戸建
所在地 佐賀県唐津市鏡虹町
交通
筑肥線 虹ノ松原駅 徒歩5分
筑肥線 東唐津駅 徒歩31分
階数 1階建
建物構造 木造
建ぺい率/容積率 60% / 80%
駐車場 有 (3台)
学校 鏡山小学校 / 鏡中学校
設備・条件
  • TVドアホン
  • 追い焚き
  • 洗浄便座
  • シャンプードレッサー
  • 浴室1坪以上
  • 床下収納
  • 浴室乾燥機
  • オートバス
  • 食器洗乾燥機
  • カウンターキッチン
  • IHクッキングヒーター
  • コンロ三口
  • システムキッチン
  • バス・トイレ別
ヤマダ不動産 福岡西店
0120-311-345
携帯電話・PHSもご利用になれます。

画像・写真

  • キッチンから会話が弾みそうなダイニングです。お友達や親せきをお招きするのも楽しみになりますね^^
    キッチンから会話が弾みそうなダイニングです。お友達や親せきをお招きするのも楽しみになりますね^^
  • 家族が集まる開放的なリビング。思い思いの時間を過ごしたり食事をしたり、素敵な団らんの場になりますね。
    家族が集まる開放的なリビング。思い思いの時間を過ごしたり食事をしたり、素敵な団らんの場になりますね。
  • パントリー
    パントリー
  • 収納も、作業スペースも広々と設けられた使いやすいシステムキッチンです^^カウンターキッチンなので、ご家族と会話をしながら楽しくお料理ができます^^
    収納も、作業スペースも広々と設けられた使いやすいシステムキッチンです^^カウンターキッチンなので、ご家族と会話をしながら楽しくお料理ができます^^
  • お手入れのしやすいIHクッキングヒーターです。3口コンロなので、効率よくお料理が楽しめます。毎日のお料理も楽しくなりますね^^
    お手入れのしやすいIHクッキングヒーターです。3口コンロなので、効率よくお料理が楽しめます。毎日のお料理も楽しくなりますね^^
  • 普通に食器洗いをする時より水道代が70%ほど削減できます。夜お休みになるときに食洗器を利用すれば朝起きた時には食器が綺麗になっていますので便利です。
    普通に食器洗いをする時より水道代が70%ほど削減できます。夜お休みになるときに食洗器を利用すれば朝起きた時には食器が綺麗になっていますので便利です。
  • オシャレなホテルライクな洗面台、洗濯機置き場、バスルームが連なっている、生活導線の考えられた作りになっています。
    オシャレなホテルライクな洗面台、洗濯機置き場、バスルームが連なっている、生活導線の考えられた作りになっています。
  • 窓付き・浴室乾燥機で換気・雨の日の洗濯もばっちり^^明るく清潔にたもてるバスルームです^^
    窓付き・浴室乾燥機で換気・雨の日の洗濯もばっちり^^明るく清潔にたもてるバスルームです^^
  • ウォシュレット、暖房便座、節電・節水機能など、使い勝手のよい高機能トイレです。
    ウォシュレット、暖房便座、節電・節水機能など、使い勝手のよい高機能トイレです。
  • 大きめのクローゼットがついた使いやすい洋室です。すっきりと整理整頓できるので気持ちよくすごせます^^
    大きめのクローゼットがついた使いやすい洋室です。すっきりと整理整頓できるので気持ちよくすごせます^^
  • ナチュラル色のフローリングで開放的な優しい雰囲気になっています^^
    ナチュラル色のフローリングで開放的な優しい雰囲気になっています^^
  • 居室としてももちろん、収納や書斎、お子様のプレイスペースにも^^使い勝手が良さそうです^^
    居室としてももちろん、収納や書斎、お子様のプレイスペースにも^^使い勝手が良さそうです^^
  • 3帖のランドリー室を設置。 洗濯動線がスムーズで、干す・しまうまで快適にこなせる間取りです。
    3帖のランドリー室を設置。 洗濯動線がスムーズで、干す・しまうまで快適にこなせる間取りです。
  • 勝手口
    勝手口
  • 玄関には土間収納を確保。靴だけでなくベビーカーやアウトドア用品も収納でき、いつでもすっきりとした玄関を保てます。
    玄関には土間収納を確保。靴だけでなくベビーカーやアウトドア用品も収納でき、いつでもすっきりとした玄関を保てます。
  • 勝手口横に物干しスペースを確保。洗濯物をすぐ干せる、毎日に便利な家事ラク動線が魅力のある住まいです。
    勝手口横に物干しスペースを確保。洗濯物をすぐ干せる、毎日に便利な家事ラク動線が魅力のある住まいです。
  • 3台まで並列駐車できるので、急な来客時やお子様が成人して車を所有するようになっても安心です。お友達をたくさん呼べますね^^
    3台まで並列駐車できるので、急な来客時やお子様が成人して車を所有するようになっても安心です。お友達をたくさん呼べますね^^
  • キッチン横からお湯張り、追い炊き、足し湯がボタン一つで楽々操作できる給湯機リモコンです^^忙しい夕飯の準備の時間帯に重宝しますね。
    キッチン横からお湯張り、追い炊き、足し湯がボタン一つで楽々操作できる給湯機リモコンです^^忙しい夕飯の準備の時間帯に重宝しますね。
  • 防犯性もばっちり、TVモニター付きインターホン完備。大きなモニターで玄関先を確認できます。録画機能が付いているので不在時の訪問者も確認できて安心です^^
    防犯性もばっちり、TVモニター付きインターホン完備。大きなモニターで玄関先を確認できます。録画機能が付いているので不在時の訪問者も確認できて安心です^^
  • 鏡山小学校
    鏡山小学校
  • 鏡中学校
    鏡中学校
  • イオン唐津ショッピングセンター
    イオン唐津ショッピングセンター
  • セブンイレブン 唐津鏡神社店
    セブンイレブン 唐津鏡神社店
  • ミスターマックス 唐津店
    ミスターマックス 唐津店
  • セブンイレブン 唐津田中店
    セブンイレブン 唐津田中店
  • エディオン 唐津鏡店
    エディオン 唐津鏡店
  • ドン・キホーテ 唐津店
    ドン・キホーテ 唐津店
  • ディスカウントドラッグコスモス 唐津鏡店
    ディスカウントドラッグコスモス 唐津鏡店
  • 松籟病院
    松籟病院

コメント

~おすすめポイント~
■JR筑肥線 / 虹ノ松原駅 徒歩5分の通勤・通学に便利な立地♪
■家事動線に配慮した、20.7帖LDKのゆとりの平屋プラン
■お財布にも環境にも優しいオール電化住宅♪

◇唐津市立鏡山小学校:徒歩約27分
◇唐津市立鏡中学校:徒歩約30分

☆年間1600件の相談実績☆
頭金0円可能!月々の返済がご不安な方!もっと良い条件を引き出したい方!すでにお借入のある方!など、住宅ローンのお悩みをこれまでにたくさんお受けしてきました^^
お客様に合った金融機関のご提案や、将来を見越した無理のないご返済プランの作成もしています!ぜひ一度ご相談下さい^^

周辺地図

Google Mapサイトを開く緯度33.42628経度130.011908

物件詳細情報

物件用途 居住用 地目 その他
間取り詳細 LDK20.7畳(1F)、洋5.6畳(1F)、洋5.1畳(1F) 都市計画 -
建物向き 用途地域 指定なし
土地面積基準 実測 接道 公道 東 幅員5m
土地権利 所有権 私道面積 -
借地条件 - 道路位置指定 -
地代 - 不適合接道 -
建築確認番号 - セットバック -
現況 空家 国土法届出 不要
引渡時期 即引き渡し可 取引態様 仲介
設備その他 -
特記事項 -
備考 -
情報更新日 2026/04/15 広告有効期限 2026/04/29
電話でお問い合わせ
ヤマダ不動産 福岡西店 店舗情報
[所在地] 福岡県福岡市西区下山門3-3-1
[営業時間] 10:00~19:00(定休日:水曜日)
0120-311-345
携帯電話・PHSもご利用になれます。