西区横浜5期 1号棟 新築戸建(売買 新築一戸建て) | 福岡市西区横浜 | 福岡市周辺の不動産・賃貸・売買は ヤマダ不動産 福岡西店 リフォーム・新築相談・老人ホーム紹介

西区横浜5期 1号棟 新築戸建 | 福岡市西区横浜の不動産物件

10万円分の「全国のヤマダデンキで使えるポイント」or「JCBギフトカード」or「65インチTV」or「空気清浄機・ダイソンドライヤー等の家電」or「6畳用エアコン」or「ヤマダデンキ特別優待割引券」≪限定1品≫プレゼント☆
さらに、ご購入相談で来店後、Google口コミ投稿で2000円分のQUOカードプレゼント!※一世帯2回まで
土日祝日もご案内可能です^^
是非一度「ヤマダ不動産」へご相談ください!あらゆる不安や疑問に誠心誠意お応えします^^
【新築一戸建て】 新築 駐車場あり
価格 4,488万円 (税込)
筑肥線 今宿駅 徒歩13分
スマホ表示
物件コード:118504
所在地 建物面積
土地面積
間取り 築年月
福岡県福岡市西区横浜1丁目 106.39m2
74.95m2
3LDK 2026/02

物件基本情報

▲1号棟 小・中学校が徒歩10分以内。通学の負担が少なく、お子様も安心して通える環境
▲3LDKに2納戸付き
物件種目 新築一戸建て
物件名称 西区横浜5期 1号棟 新築戸建
所在地 福岡県福岡市西区横浜1丁目
交通
筑肥線 今宿駅 徒歩13分
筑肥線 九大学研都市駅 徒歩20分
階数 3階建
建物構造 木造
建ぺい率/容積率 60% / 163%
駐車場 有 (2台)
学校 玄洋小学校 / 玄洋中学校
設備・条件
  • ガス:個別プロパン
  • 汚水:公共下水
  • 水道:公営水道
  • TVドアホン
  • Wクローゼット
  • 追い焚き
  • 洗浄便座
  • シャンプードレッサー
  • 浴室1坪以上
  • 床下収納
  • 浴室乾燥機
  • バルコニー
  • オートバス
  • 食器洗乾燥機
  • コンロ三口
  • システムキッチン
  • バス・トイレ別
ヤマダ不動産 福岡西店
0120-311-345
携帯電話・PHSもご利用になれます。

画像・写真

  • 画像はCGによるイメージです。 導線が考えられたリビングダイニングなので忙しい時間でも効率よく動けますね^^慌ただしい朝の時間も安心です^^
    画像はCGによるイメージです。 導線が考えられたリビングダイニングなので忙しい時間でも効率よく動けますね^^慌ただしい朝の時間も安心です^^
  • 収納力と機能性を両立した3階建の新築戸建
    収納力と機能性を両立した3階建の新築戸建
  • L字型で効率まで考えられたおしゃれなキッチンを中心とした開放的なリビング。お友達や親せきをお招きするのも楽しみです^^
    L字型で効率まで考えられたおしゃれなキッチンを中心とした開放的なリビング。お友達や親せきをお招きするのも楽しみです^^
  • リビングダイニングを見渡せるキッチンです。家族とコミュニケーションをとりながら、楽しくお料理や片付けができそうです。
    リビングダイニングを見渡せるキッチンです。家族とコミュニケーションをとりながら、楽しくお料理や片付けができそうです。
  • 作業スペースを広く使えるコンパクトなL型キッチンです。作業動線が短くなるので、効率よくお料理ができます。
    作業スペースを広く使えるコンパクトなL型キッチンです。作業動線が短くなるので、効率よくお料理ができます。
  • 3種類の料理が同時に調理できる、3口ガスコンロ。忙しい夕食の支度時間が短縮できて効率よくお料理が楽しめます。
    3種類の料理が同時に調理できる、3口ガスコンロ。忙しい夕食の支度時間が短縮できて効率よくお料理が楽しめます。
  • 大きなお鍋も楽々洗える幅の広いシンクです^^
    大きなお鍋も楽々洗える幅の広いシンクです^^
  • 炊事時間を大幅に短縮できる食器洗浄乾燥機付き^^食器を洗う手間が減るので家族とのコミュニケーションの時間や自分の時間が増えますね。
    炊事時間を大幅に短縮できる食器洗浄乾燥機付き^^食器を洗う手間が減るので家族とのコミュニケーションの時間や自分の時間が増えますね。
  • コンロ上には換気扇完備^^
    コンロ上には換気扇完備^^
  • 洗面台、洗濯機置き場、バスルームが連なっている、生活導線の考えられた作りになっています。
    洗面台、洗濯機置き場、バスルームが連なっている、生活導線の考えられた作りになっています。
  • 1日の疲れを癒すくつろぎのバスルーム。足を伸ばしてもゆったりと入れるサイズです。お子様と一緒にお風呂に入っても狭くないですね。
    1日の疲れを癒すくつろぎのバスルーム。足を伸ばしてもゆったりと入れるサイズです。お子様と一緒にお風呂に入っても狭くないですね。
  • ウォシュレット付きトイレです。2ヶ所にトイレがあるので、忙しい朝にもゆとりができますね^^
    ウォシュレット付きトイレです。2ヶ所にトイレがあるので、忙しい朝にもゆとりができますね^^
  • バルコニーに面した明るいお部屋です。居室としてももちろん、収納や書斎、お子様のプレイスペースにも^^使い勝手が良さそうです。
    バルコニーに面した明るいお部屋です。居室としてももちろん、収納や書斎、お子様のプレイスペースにも^^使い勝手が良さそうです。
  • 2面採光を確保した爽やかな風を感じて起きる朝は、快適生活の始まりに。窓が高い位置にあるので眩しすぎず快適です。
    2面採光を確保した爽やかな風を感じて起きる朝は、快適生活の始まりに。窓が高い位置にあるので眩しすぎず快適です。
  • ナチュラルなカラーを基調とした洋室。クローゼットが設けられているので、すっきりと整理整頓でき気持ちよく過ごせます。
    ナチュラルなカラーを基調とした洋室。クローゼットが設けられているので、すっきりと整理整頓でき気持ちよく過ごせます。
  • 大容量のウォークインクローゼット。季節ごとのお洋服全てを収納できるので、衣替えも楽になりますね^^
    大容量のウォークインクローゼット。季節ごとのお洋服全てを収納できるので、衣替えも楽になりますね^^
  • 収納量たっぷりのクローゼット付です。
    収納量たっぷりのクローゼット付です。
  • 陽当たりの良いバルコニーです。お洗濯やお布団干しはもちろん、日光浴スペースにも。足元は防水工事施工済です。
    陽当たりの良いバルコニーです。お洗濯やお布団干しはもちろん、日光浴スペースにも。足元は防水工事施工済です。
  • 屋上は3.72㎡。 海が見えるので眺望の良い屋上でのくつろぎの空間としても。物置やソーラーパネルの設置など自由な使い方ができますね。
    屋上は3.72㎡。 海が見えるので眺望の良い屋上でのくつろぎの空間としても。物置やソーラーパネルの設置など自由な使い方ができますね。
  • 玄関扉から光の差し込む明るい玄関です。たっぷり収納できるシューズボックス付きなので、家族全員の靴がきれいに整頓できます。
    玄関扉から光の差し込む明るい玄関です。たっぷり収納できるシューズボックス付きなので、家族全員の靴がきれいに整頓できます。
  • バルコニーからの眺望。オーシャンビューのバルコニーです。
    バルコニーからの眺望。オーシャンビューのバルコニーです。
  • 家から出てすぐ広がるのは、まるで絵画のような海景色。道路から望む海は、季節ごとに違う表情を見せてくれます。
    家から出てすぐ広がるのは、まるで絵画のような海景色。道路から望む海は、季節ごとに違う表情を見せてくれます。
  • 徒歩30秒で海を望めるロケーション。綺麗な海景色を毎日眺めることができる、解放感あふれる住環境です^^
    徒歩30秒で海を望めるロケーション。綺麗な海景色を毎日眺めることができる、解放感あふれる住環境です^^
  • 防犯性もばっちり、TVモニター付きインターホン完備。大きなモニターで玄関先を確認できます。
    防犯性もばっちり、TVモニター付きインターホン完備。大きなモニターで玄関先を確認できます。
  • 玄洋小学校
    玄洋小学校
  • 玄洋中学校
    玄洋中学校
  • 今宿病院
    今宿病院
  • マツモトキヨシ 今宿店
    マツモトキヨシ 今宿店
  • ファミリーマート 福岡今宿三丁目
    ファミリーマート 福岡今宿三丁目
  • ツルハドラッグ 今宿店
    ツルハドラッグ 今宿店
  • マルショク 今宿
    マルショク 今宿
  • ドン・キホーテ 今宿店
    ドン・キホーテ 今宿店
  • ミニストップ 福岡今宿1丁目
    ミニストップ 福岡今宿1丁目
  • イオン 福岡伊都店
    イオン 福岡伊都店

コメント

~おすすめポイント~
■1号棟:3LDK+納戸付き
■2、3号棟:2LDK+2納戸付き
■小・中学校が徒歩10分以内。通学の負担が少なく、お子様も安心して通える環境♪
■バス停まで徒歩2分で、毎日の通勤もスムーズ!
■収納力と機能性を両立した3階建の新築戸建

◇玄洋小学校:徒歩約11分
◇玄洋中学校:徒歩約9分

☆年間1600件の相談実績☆
頭金0円可能!月々の返済がご不安な方!もっと良い条件を引き出したい方!すでにお借入のある方!など、住宅ローンのお悩みをこれまでにたくさんお受けしてきました^^
お客様に合った金融機関のご提案や、将来を見越した無理のないご返済プランの作成もしています!ぜひ一度ご相談下さい。

周辺地図

Google Mapサイトを開く緯度33.585758経度130.267198

物件詳細情報

物件用途 居住用 地目 宅地
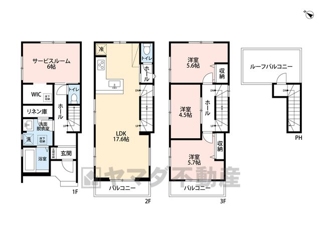
間取り詳細 LDK17.6畳(2F)、S6畳(1F)、洋4.5畳(3F)、洋5.7畳(3F)、洋5.6畳(3F) 都市計画 市街化区域
建物向き 南西 用途地域 第一種住居地域
土地面積基準 実測 接道 公道 南西 幅員4m
土地権利 所有権 私道面積 -
借地条件 - 道路位置指定 -
地代 - 不適合接道 -
建築確認番号 - セットバック -
現況 空家 国土法届出 不要
引渡時期 即引き渡し可 取引態様 仲介
設備その他 -
特記事項 景観計画区域(海浜ゾーン)
備考 -
情報更新日 2026/04/10 広告有効期限 2026/04/24
電話でお問い合わせ
ヤマダ不動産 福岡西店 店舗情報
[所在地] 福岡県福岡市西区下山門3-3-1
[営業時間] 10:00~19:00(定休日:水曜日)
0120-311-345
携帯電話・PHSもご利用になれます。